Descrizione

PROGETTO CASA srl propone in vendita : Villetta in bifamiliare-
Prossima realizzazione di villette cielo-terra, libere su tre lati con ingresso indipendente e giardino privato.
Progetto già disponibile con possibilità di visionarlo tramite rendering 3D previo appuntamento presso la nostra sede. Personalizzazione completa: possibilità di scegliere tra le finiture da capitolato oppure personalizzare gli interni secondo i propri gusti.
Composizione:
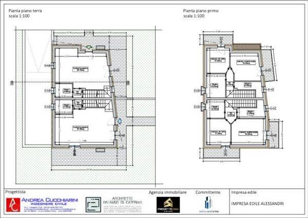
Piano Terra Rialzato – Zona Giorno
Ampio soggiorno, cucina e bagno, spazi ben distribuiti e luminosi.
Piano Primo – Zona Notte
Camere da letto spaziose, bagno e possibilità di cabina armadio o studio.
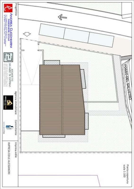
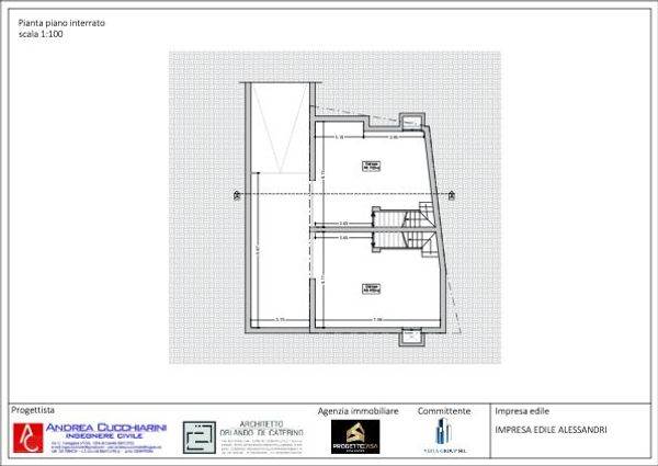
Garage di 50 mq con possibilità di realizzare una comoda taverna o spazio hobby.
📐 Superficie Commerciale 145,00 mq abitativi con garage + giardino privato
📞 Contattaci per fissare un appuntamento e scoprire tutti i dettagli del progetto!
Siamo a disposizione presso il nostro ufficio in Corso Vittorio Emanuele 17A – Città di Castello. Tel 075 852 2243.
💶 Prezzo su richiesta – disponibile presso il nostro ufficio


Caratteristiche principali

Stato Immobile
Prossima Realizzazione
Grado
Signorile
Raffrescamento
Pavimento
Accessori: Antifurto, Aria Condizionata, Bagno Handicap, Tripli Vetri

Cookie preference